Call for appointment or walk in Wednesday through Saturday 10am to 4pm
Call for Appointment
or Walk in
Wednesday through Saturday
10am to 4pm
Call for appointment or walk in Wednesday through Saturday 10am to 4pm

Family Built Homes

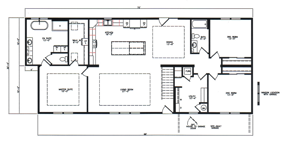
Family Built Homes - FB-687201

FB-687201
2123 sq.ft.
3 bedrooms
2 bathrooms
30'4" x 72'0"

Equal Housing Opportunity
MLS Realtor